Booth Falls Renovation

Booth Falls Renovation

Type - CO, Residential Projects

Location - Vail

Project Description

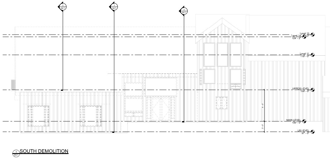
The Booth Falls Residence involved the renovation of windows and their layout in multiple walls and spaces to grant better light as well as unbroken views of the surrounding areas.